Ingvald Ludvigsens gate 23
3027 Drammen
Fon +47 9006 1100
Fax
1. Choose the number of carriages
2. Choose the type of carriage
3. Enter the carriage length in mm
4. Choose the carriage options
5. Choose the rail options
You can find detailed information in the drawings below and also on the pages listed below. You can find more precise information on the floating bearing types within the construction rules.
A:Version with floating bearing in z-direction
B:Horizontal version with floating bearing in z-direction
C:Horizontal version with guide carriages at the side
and floating bearing in the y-direction
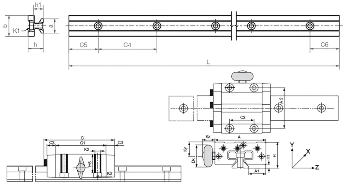
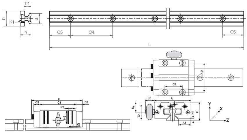
Rail
2Slide elements
3Carriage with fixed bearings
4Carriage with floating bearings LLZ or LLY
Guide rails
| Part No. | Weight [kg/m] |
L max. |
a -0,2 |
C4 | C5 min. |
C5 max. |
C6 min. |
C6 max. |
h | h1 | K1 for screw DIN 912 |
b | ly [mm4] |
lz [mm4] |
Wby [mm4] |
Wbz [mm4] |
|---|---|---|---|---|---|---|---|---|---|---|---|---|---|---|---|---|
| TS-01-15 | 0,6 | 4.000 | 15 | 60 | 20 | 49,5 | 20 | 49,5 | 15,5 | 10 | M4 | 22 | 6.440 | 4.290 | 585 | 488 |
| TS-01-20 | 1 | 4.000 | 20 | 60 | 20 | 49,5 | 20 | 49,5 | 19 | 12,3 | M5 | 31 | 22.570 | 11.520 | 1.456 | 1.067 |
| TS-11-20 | 4.000 | 20 | 120 | 20 | 79,5 | 20 | 79,5 | 19 | 12,3 | M5 | 31 | 12.140 | 6.360 | 780 | 620 | |
| TS-01-25 | 4.000 | 23 | 60 | 20 | 49,5 | 20 | 49,5 | 21,5 | 13,8 | M6 | 34 | 34.700 | 19.300 | 2.041 | 1.608 | |
| TS-01-30 | 4.000 | 28 | 80 | 20 | 59,5 | 20 | 59,5 | 26 | 15,8 | M8 | 40 | 70.040 | 40.780 | 3.502 | 2.832 |
| Part No. | Weight [kg] |
H ±0,35 |
A | C | A1 ±0,35 |
A2 | C1 | C2 | C3 | H1 ±0,35 |
H5 | K2 thread | Tightening torque max. [Nm] |
K3 for screw DIN 912 |
|---|---|---|---|---|---|---|---|---|---|---|---|---|---|---|
| TW-01-15 | 0,11 | 24 | 47 | 74 | 16,0 | 38 | 50 | 30 | 9 | 4,0 | 16,0 | M5 | 1,5 | M4 |
| TW-01-20 | 0,19 | 30 | 63 | 87 | 21,5 | 53 | 61 | 40 | 10 | 5,0 | 19,8 | M6 | 2,5 | M5 |
| TW-01-25 | 0,29 | 36 | 70 | 96 | 23,5 | 57 | 68 | 45 | 11 | 5,0 | 24,8 | M8 | 6,0 | M6 |
| TW-01-30 | 0,50 | 42 | 90 | 109 | 31,0 | 72 | 79 | 52 | 12 | 6,5 | 27,0 | M10 | 15,0 | M8 |
| Part No. | Size | Kz | Ky | Dk | Clamp thread |
|---|---|---|---|---|---|
| TW-01-15-HKA | 15 | 19 | 11,5 | 20 | M6 |
| TW-01-20-HKA | 20 | 18 | 15 | 28 | M8 |
| TW-01-25-HKA | 25 | 17 | 19 | 28 | M8 |
| TW-01-30-HKA | 30 | 20 | 21,5 | 28 | M8 |
